
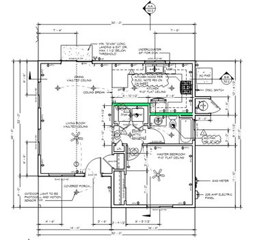
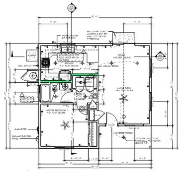
A small one bedroom home without a garage that can also serve as an ADU. This home is loved for its cottage charm.
Building Width: 30′-0″
Building Depth: 28′-0″
Residence Area: 756 sqft
No Garage
Flipped Layout Available
Porch left or right option




We use cookies to analyze website traffic and optimize your website experience. By accepting our use of cookies, your data will be aggregated with all other user data.