
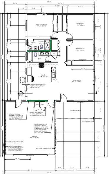
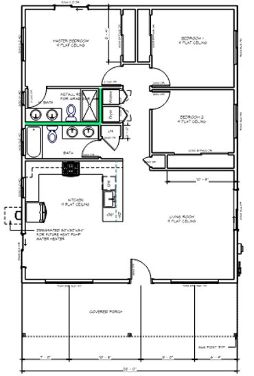
A home designed to accommodate narrow properties and septic capacity with the den option. This home has many natural light opportunities along with more personalization options leading this home to be perfect for families.
Building Width: 42′-0″
Building Depth: 66′- 8″
Residence Area: 1,316 sq ft
Garage Area: 624 sq ft
Covered Porch Areas: 144 sq ft
Flipped Layout Available
Garage right or left option
No garage option
Gable or Hip roof option










We use cookies to analyze website traffic and optimize your website experience. By accepting our use of cookies, your data will be aggregated with all other user data.