
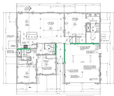
A ranch family style home with a single-level living area including a open kitchen, dinning and living area. This is a split floor plan allowing for master suite privacy. Tall ceilings lead to spacious rooms and even added charm with tray ceilings.
Building Width: 53′-0″
Building Depth: 45′-0″
Residence Area: 1,674 sqft
Garage: 543 sqft
Flipped Layout Available
Garage right or left option
Gable or Hip roof option










We use cookies to analyze website traffic and optimize your website experience. By accepting our use of cookies, your data will be aggregated with all other user data.